Les incontournables du Appartement Soléna
sauna
Jacuzzi
Ascenseur
Terrasse
Description
Séjournez à l’appartement Soléna : confort, praticité et ski aux pieds à La Plagne 1800
Idéalement situé dans le charmant village de La Plagne 1800, l’appartement Soléna est une belle adresse pour profiter pleinement de la montagne en famille ou entre amis. À seulement 100 mètres des pistes et à proximité immédiate de l’arrêt de la navette gratuite, il permet un accès facile au domaine skiable tout en restant à quelques pas des commerces et services du centre de la station.
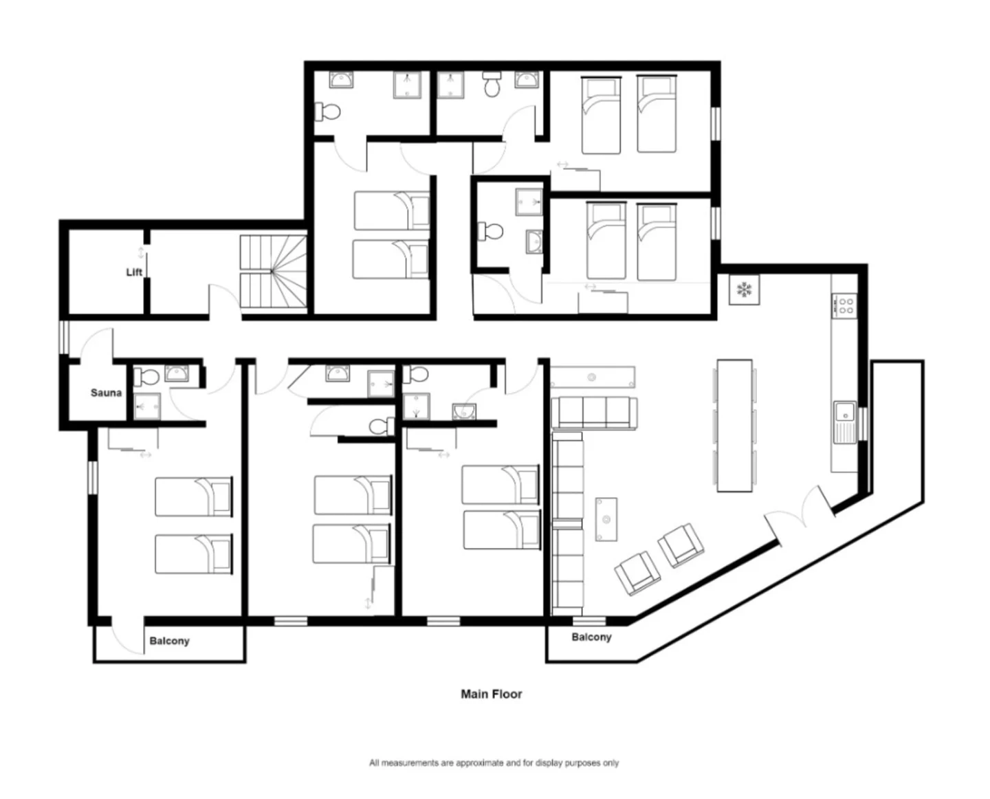
Cet appartement fonctionnel de 140 m² offre 6 chambres en suite, un séjour lumineux sous le faîtage, avec une terrace avec jacuzzi et vue sur les montagnes, une cuisine ouverte conviviale et un sauna privatif pour se détendre après le ski.
L’appartement Soléna est parfaitement adapté à ceux qui recherchent un hébergement spacieux, bien équipé et directement connecté à la montagne.
Pointe de sel organisera pour vous votre séjour sur mesure en fonction de vos besoins, avec la location de votre appartement à La Plagne, la restauration à base de produits locaux et de saison, vos transferts, la garde éventuelle de vos enfants et la réservation de vos activités pour que vous n’ayez qu’à en profiter et vous fabriquer des souvenirs.
L’appartement Soléna est composé comme suit :
Rez-de-chaussée
-
Entrée privative avec local à skis, sèche-chaussures et casiers, pratique pour organiser le retour des pistes.
Niveau 4
-
Chambre 1 : deux lits simples 80 x 200 cm (configurables en lit double 160 x 200), salle d’eau privative avec douche et WC.
-
Chambre 2 : deux lits simples 80 x 200 cm (configurables en lit double 160 x 200), salle d’eau privative avec douche et WC.
-
Chambre 3 : deux lits simples 80 x 200 cm (configurables en lit double 160 x 200), salle d’eau privative avec douche et WC.
-
Chambre 4 : deux lits simples 80 x 200 cm (configurables en lit double 160 x 200), salle d’eau privative avec douche et WC.
-
Chambre 5 : deux lits simples 80 x 200 cm (configurables en lit double 160 x 200), salle d’eau privative avec douche et WC.
-
Chambre 6 : deux lits simples 80 x 200 cm (configurables en lit double 160 x 200), salle d’eau privative avec douche et WC.
Pièces de vie
-
Séjour confortable avec coin repas, TV, et accès à un terrace avec vue dégagée sur les montagnes.
- Jacuzzi privatif sur la terrace.
-
Cuisine ouverte entièrement équipée : plaques vitrocéramiques, four, micro-ondes, lave-vaisselle, grand réfrigérateur, vaisselle et ustensiles.
-
Sauna privatif, pour un moment de détente en fin de journée.
Un environnement calme et pratique au cœur du domaine de La Plagne
Plagne 1800 est un village familial au cadre boisé, apprécié pour son ambiance détendue et son accès rapide aux pistes. Vous y trouverez tout le nécessaire pour un séjour agréable : commerces de proximité, restaurants, école de ski et navette gratuite vers les autres sites de la station.
L’appartement Soléna est situé dans un chalet résidentiel calme, à deux minutes de marche des remontées mécaniques. Le vaste domaine de Paradiski (La Plagne, Les Arcs, Peisey-Vallandry) vous ouvre ses portes avec plus de 400 km de pistes adaptées à tous les niveaux.
Un hébergement confortable et bien situé, idéal pour ceux qui souhaitent profiter pleinement de la montagne dans un environnement fonctionnel, simple et agréable.
Détail des chambres
Equipements
Situation
En train : Gare d’Aime la Plagne. Temps de trajet depuis :
- Paris 4h55
- Lyon 3h20
- Marseille 5h20
puis 30 minutes de transfert jusqu'à La Plagne 1800.
En voiture depuis :
- Paris 6h30
- Lyon 3h30
- Marseille 4h45.
En avion aéroports de Genève ou de Lyon puis 2h30 de transfert.
Termes et règles
Lors de votre réservation, une caution vous sera demandée afin de couvrir tous les potentiels dommages pendant votre séjour.
Les conditions d’annulation et de prépaiement varient selon le type d’option et les chalets. Merci de nous contacter pour plus de détail.
Appartement Soléna
Avec Pointe de sel, votre séjour au chalet Appartement Soléna est tout compris et sur mesure.
- Un chalet privatisé
- Un service de restauration
- Des activités à la carte
Ou par téléphone : +33 6 30 35 39 29
DÉCOUVREZ NOS AUTRES CHALETS
Prêt à vivre l'expérience Pointe de sel ?
Prenez contact avec une de nos expertes.
Elles répondent généralement dans les 24h.
Nous appeler
+33 6 30 35 39 29
Copyright © 2021 Pointe de Sel. Tous droits réservés.
Mentions légales • Site réalisé avec ❤️ par Julien Deret












